Fertigungsplanung • Mit diesem Programmbaustein werden Aufträge nach verschiedenen Kriterien automatisch eingeplant. Bei der Planung werden die Anlagenkapazität, der Wunschtermin des Kunden und auch die Abholzeiten berücksichtigt....
Engineering für alle „Lebensabschnitte“ eines Investitionsvorhabens Unsere Erfahrungen und Ideen setzen wir zum Nutzen unserer Kunden ein. Wir bieten Gesamtleistungen aus einer Hand - Sie haben dafür keine Schnittstellenprobleme....
• DIN 1986 Entwässerungsanlagen für Gebäude und GrundstückeTeil 100: Bestimmungen in Verbindung mit DIN EN 752 und DIN EN 12056 Teil 3: Regeln für Betrieb und Wartung Teil 4: Verwendungsbereiche von Abwasserrohren und...
• Schon jetzt haben Sie aber auf alle Inhalte Zugriff auf dem etwas unkomfortableren Weg über den Download unserer diversen Planungs- und Projektierungsinformationen. Ihre Themen finden Sie hier:
• Bei vielen Flachdachkonstruktionen ist heute die sichere Dachentwässerung mit Druckströmung möglich. Voraussetzung für optimale Strömungsverhältnisse ist eine Vollfüllung der Regenwasserleitung: Spezielle Flachdachabläufe...
• Düker bietet Ihnen mit profiplan XL von Dendrit, in Zusammenarbeit mit, ein Komplettprogramm zur Berechnung von Heizung, Trinkwasser sowie Abwasser: - Strangschemaplanung ohne zusätzliches CAD- Schemengenerator für die schnelle...
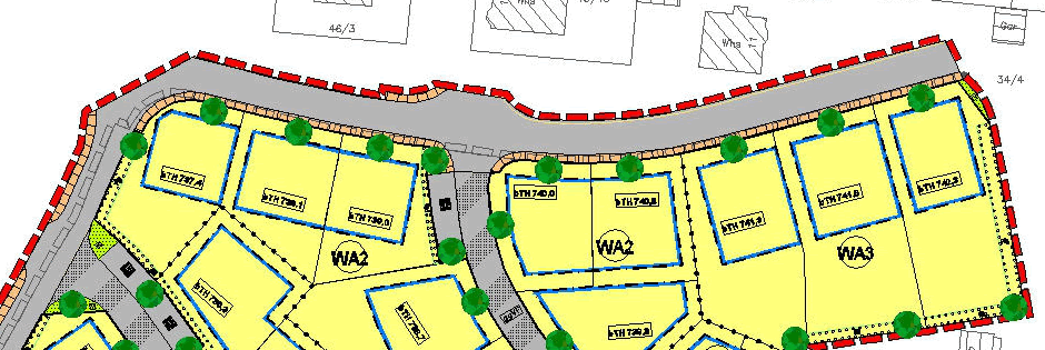
Bauleitplanung - Bebauungspläne / Flächennutzungspläne Die Bauleitplanung ist ein wichtiges Werkzeug der Kommunen. Unter Berücksichtigung aller übergeordneten Planungen wie Landesentwicklungsplan und Regionalplan steuert die Kommune...
There are no translations available. Bauleitplanung - Bebauungspläne / Flächennutzungspläne Die Bauleitplanung ist ein wichtiges Werkzeug der Kommunen. Unter Berücksichtigung aller übergeordneten Planungen wie Landesentwicklungsplan...
Studie, Generalentwässerungs- oder Objektplanung: Sie dürfen von unseren Planungen erwarten, dass sowohl der übergeordnete Rahmen als auch die entscheidenden Details berücksichtigt werden. Überblick übers Ganze - Verantwortung für...
CAD/CAE Planungswerkzeug AUTOCAD:, • Werkzeug zur Planung und Visualisierung von technischen Anlagen und Problemstellungen. ELCAD:, • eine Komplettlösung für Planung, Bau, Betrieb und Instandhaltung elektrischer Anlagen...
• Optimale Planung ist uns sehr wichtig. Wir fertigen individuell alle Bauvorhaben an. Deshalb ist es notwendig, schon im Vorfeld eine genaue Planung mit Ihnen abzustimmen. • denn dort bin ich gut beraten in allen Fragen der...
Planung in 3D Räumlich sehen - schneller erkennen: Zusätzlich zu den Ausführungszeichnungen (mit allen Bemaßungen und Kennzeichnungen) liefert Evers Engineering zu jedem Projekt farbige, räumliche Ansichten der geplanten Anlage. Das...
• Unser Leistungsangebot umfasst die Phasen 1-9 gemäß HOAI von der Grundlagenermittlung, Vorplanung und Genehmigung über die Ausarbeitung der Ausführungsunterlagen bis zur Bauüberwachung, einschließlich der Erarbeitung von...
Wir verwenden Cookies, um Ihnen ein optimales Webseiten-Erlebnis zu bieten.
Dazu zählen Cookies, die für den Betrieb der Seite notwendig sind, sowie solche,
die lediglich zu anonymen Statistikzwecken, für Marketingzwecke oder zur Anzeige externer
Inhalte genutzt werden. Sie können selbst festlegen, welche Cookies Sie zulassen möchten.
Mit Klick auf "Alle akzeptieren" oder auf "Statistik" erklären Sie zudem Ihre Einwilligung
in das Webtracking mittels Google Analytics und der übertragung Ihrer Daten zu Google
in die USA mit dem Risiko der Einsichtnahme durch dortige Sicherheitsbehörden.
Ihre hier abgegebene Einwilligung können Sie jederzeit mit Wirkung für die Zukunft widerrufen.
Hierzu klicken Sie auf Datenschutzeinstellun und wählen dann erneut aus.
Details finden Sie in unserer Datenschutzerklärung.
Name: cckoptAccepted
Anbieter: Intern
Gültigkeitsdauer: 1 Jahr
Art: Persistentes Cookie
Name: cckoptMarketing
Anbieter: Intern
Gültigkeitsdauer: 1 Jahr
Art: Persistentes Cookie
Marketing
Google DoubleClick
Marketing-Cookies werden von Drittanbietern oder Publishern verwendet, um personalisierte Werbung anzuzeigen.
Name: __gads
Anbieter: Google
Gültigkeitsdauer: 1 Jahr
Art: Persistentes Cookie
Dient beispielsweise der Messung der Interaktionen mit den Anzeigen auf unserer Domain und der Verhinderung, dass Ihnen dieselben Anzeigen zu oft angezeigt werden.
Wir möchten die Informationen auf www.ivaa.de auf Ihre Bedürfnisse anpassen. Deshalb setzen wir Cookies ein. Entscheiden Sie bitte, welche Cookies bei der Nutzung von www.ivaa.de gesetzt werden sollen. Technische und funktionale Cookies benötigen wir zwingend, damit Ihnen www.ivaa.de optimal abgezeigt wird. Darüber hinaus verwenden wir Cookies, um den Erfolg unseres Angebotes Kampagnen messen können. Weitere Informationen erhalten Sie in unserer Datenschutzerklärung.